




Vue 01
2026
Construction neuveGrasse (06)
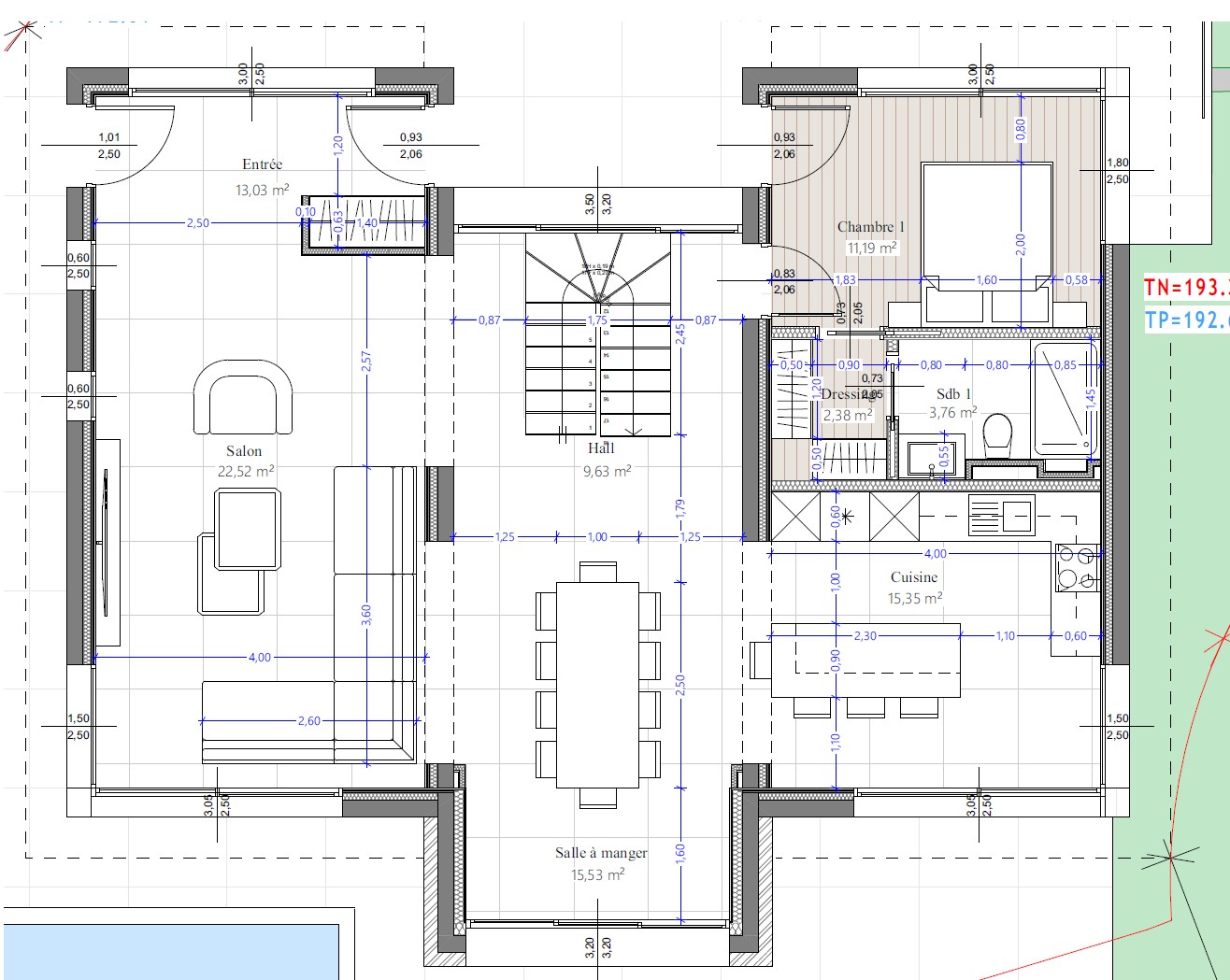
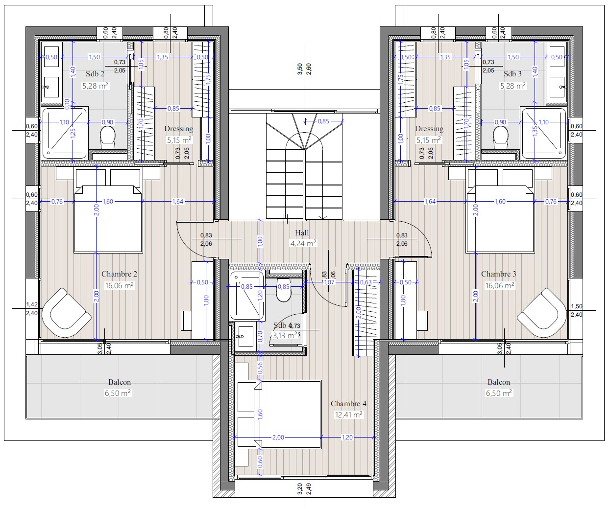
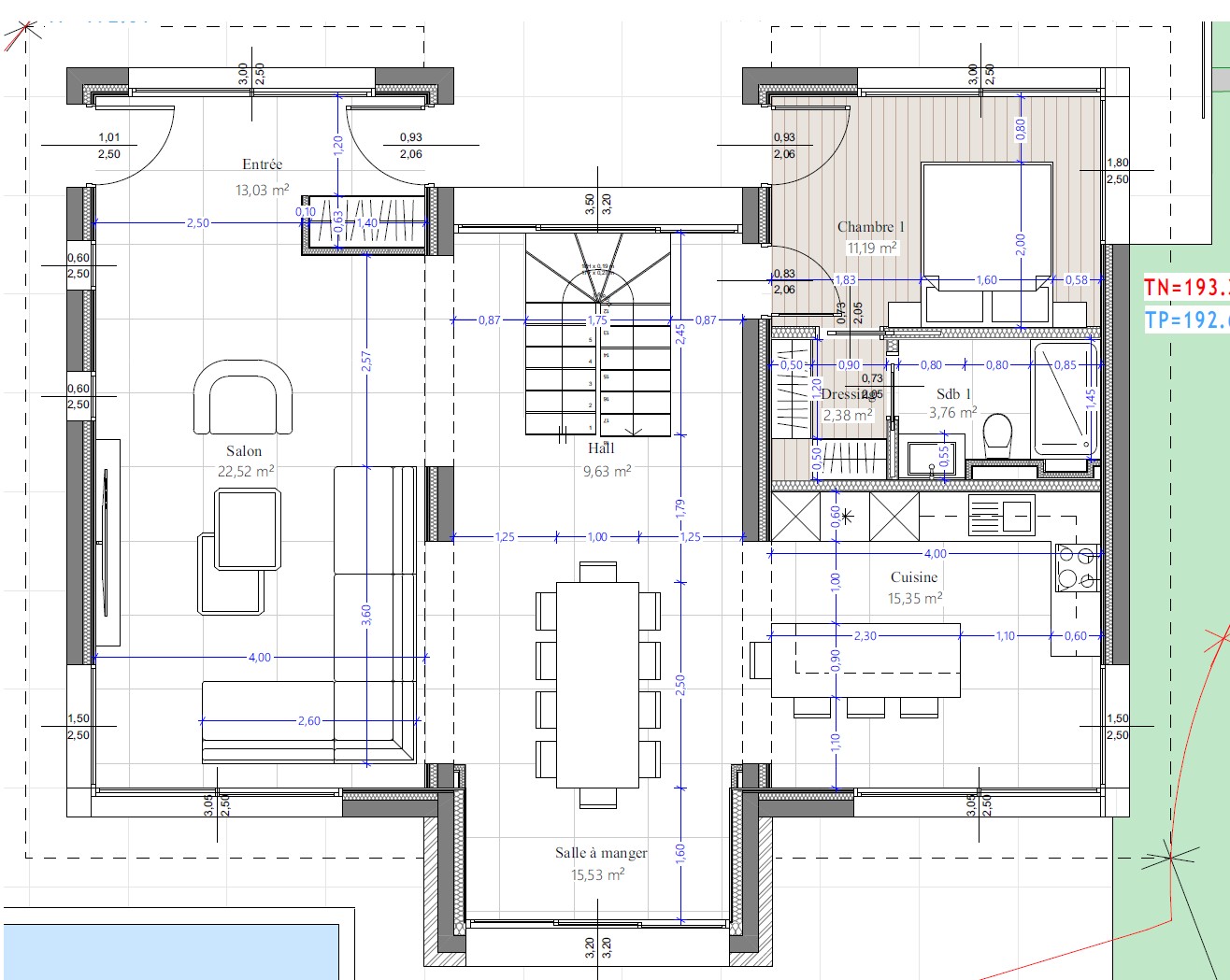
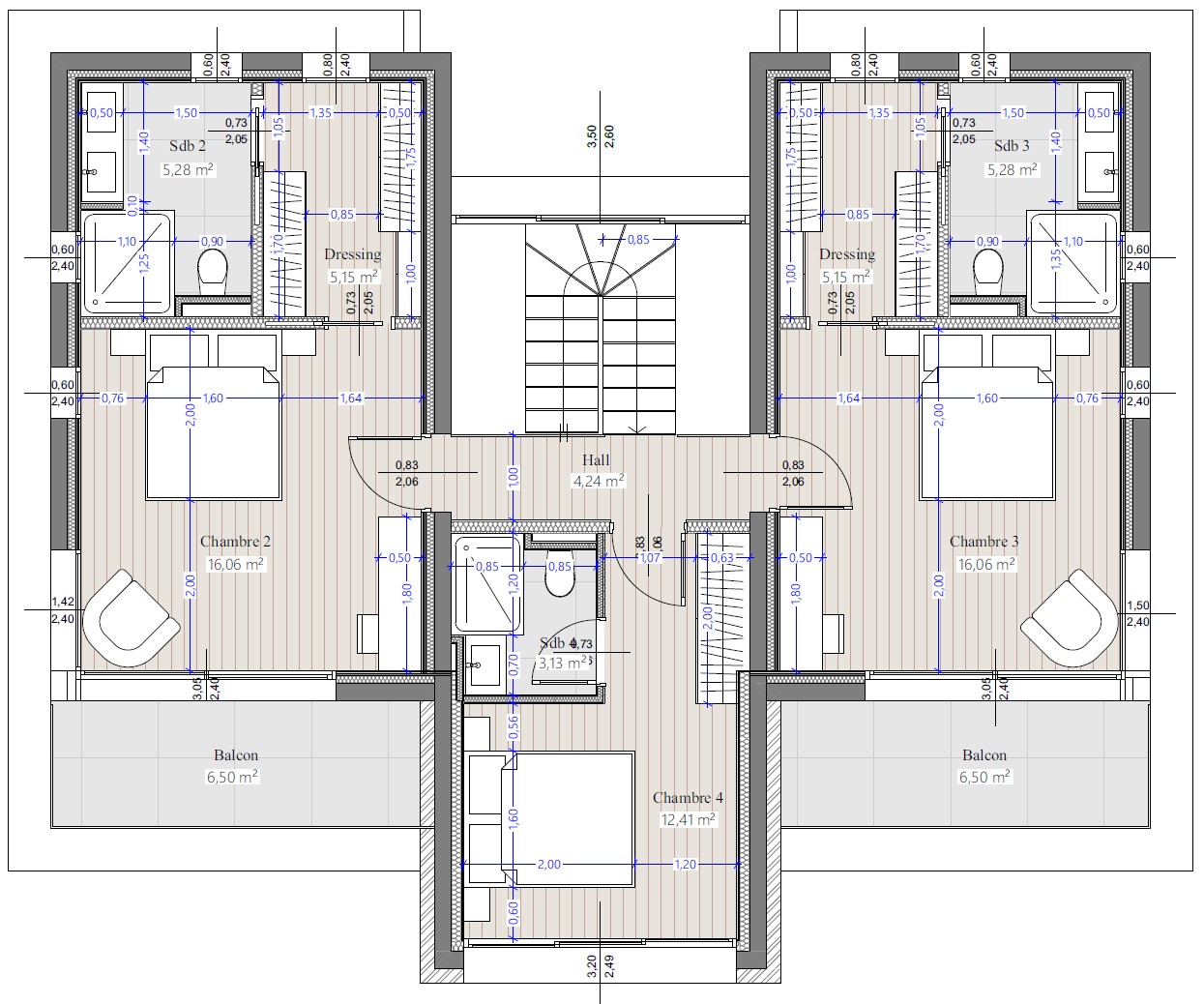
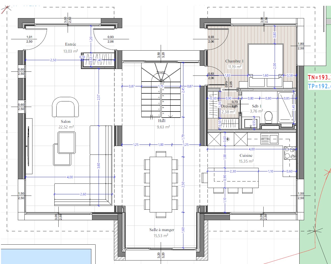
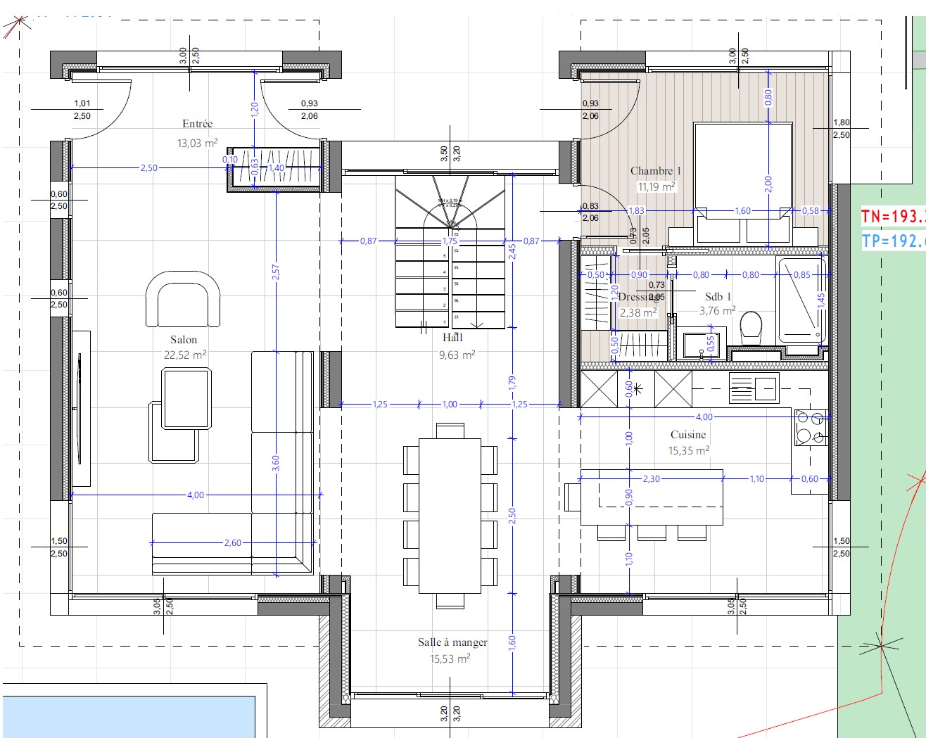
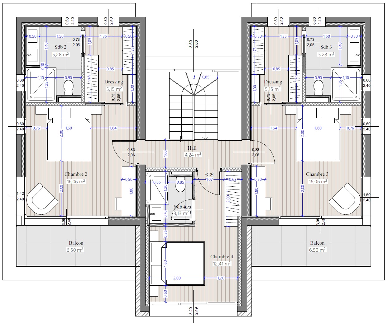
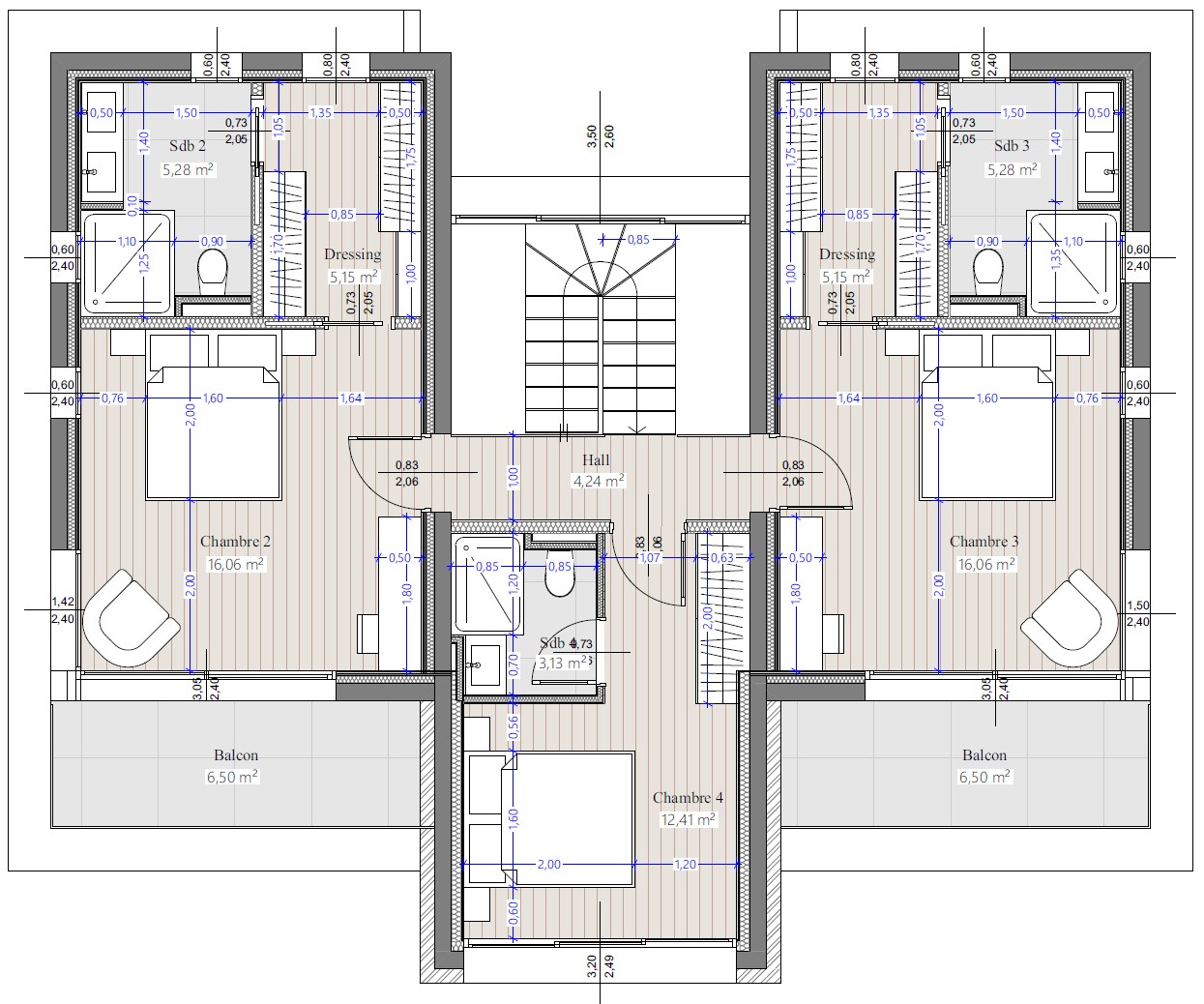
Maison provençale R+1
Conception d'une maison de style provençal sur 2 niveaux avec modélisation 3D, plan masse et plans RDC & R+1.
Plans 2D/3DPermis de construireConstruction neuveStyle provençal

Portfolio
Découvrez nos projets architecturaux réalisés sur la Côte d'Azur et en France.





Conception d'une maison de style provençal sur 2 niveaux avec modélisation 3D, plan masse et plans RDC & R+1.




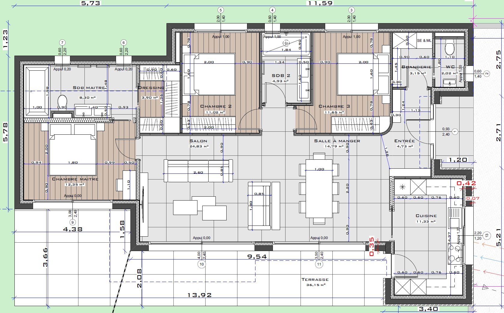
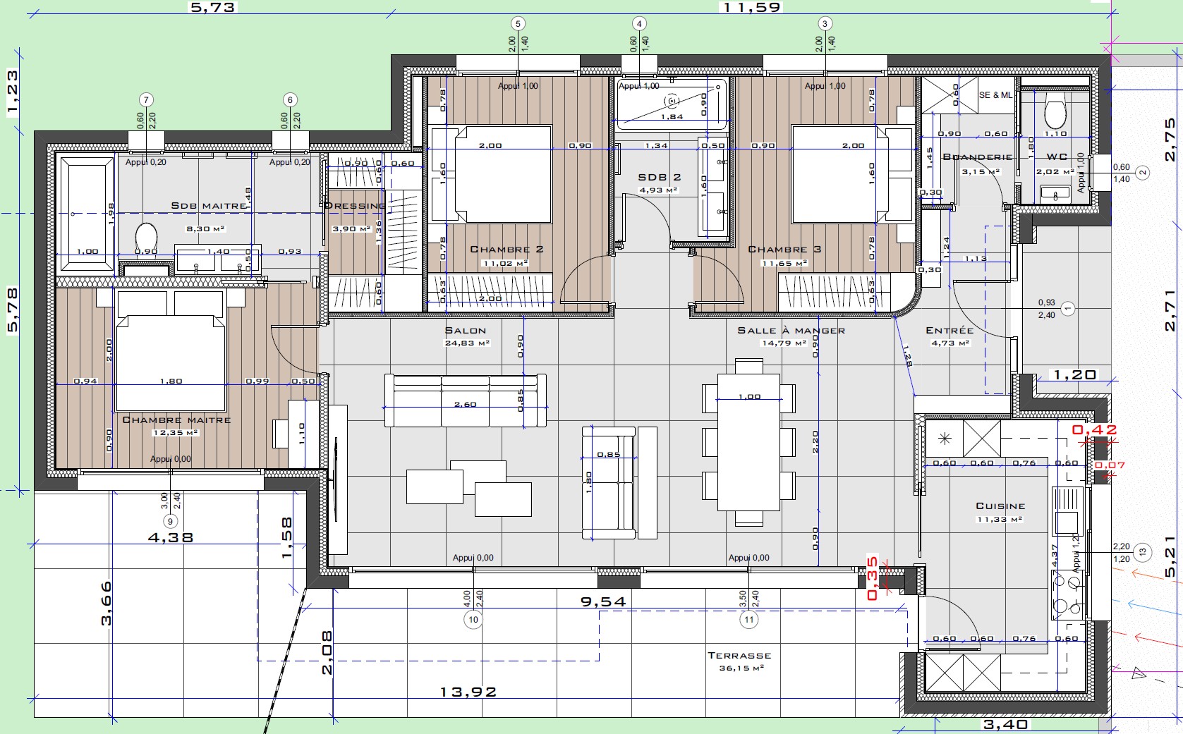
Conception d'une maison de plain-pied avec modélisation 3D complète, plan masse et plans de distribution.




Conception d'une maison de plain-pied avec modélisation 3D, plan masse et plan RDC.




Conception d'une maison sur 2 niveaux avec modélisation 3D et plans RDC & R+1.




Conception d'une maison sur 2 niveaux avec modélisation 3D et plans RDC & R+1.
Contactez-nous pour un premier échange gratuit.
Discuter de mon projet